Lowndes Area Knowledge Exchange (LAKE)
Page 44
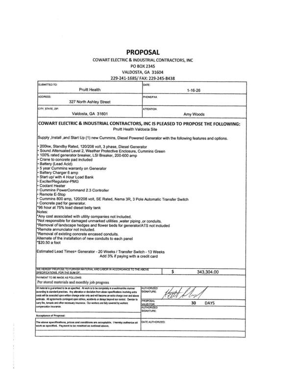
Consideration of Procurement Determination Declaring Initial Proposal Non-Responsive and Award of Contract to Cowart
Packet: Emergencies, Disasters, Judges, Drugs, and Wells @ LCC
28 April 2026
bigger
PDF
Photographs
by
Lowndes Area Knowledge Exchange (LAKE)
,
licensed by a
Creative Commons Attribution-Share Alike 3.0 U.S. License
.
Lowndes Area Knowledge Exchange (LAKE)