Lowndes Area Knowledge Exchange (LAKE)

[prev][index][next] [index to photographs]

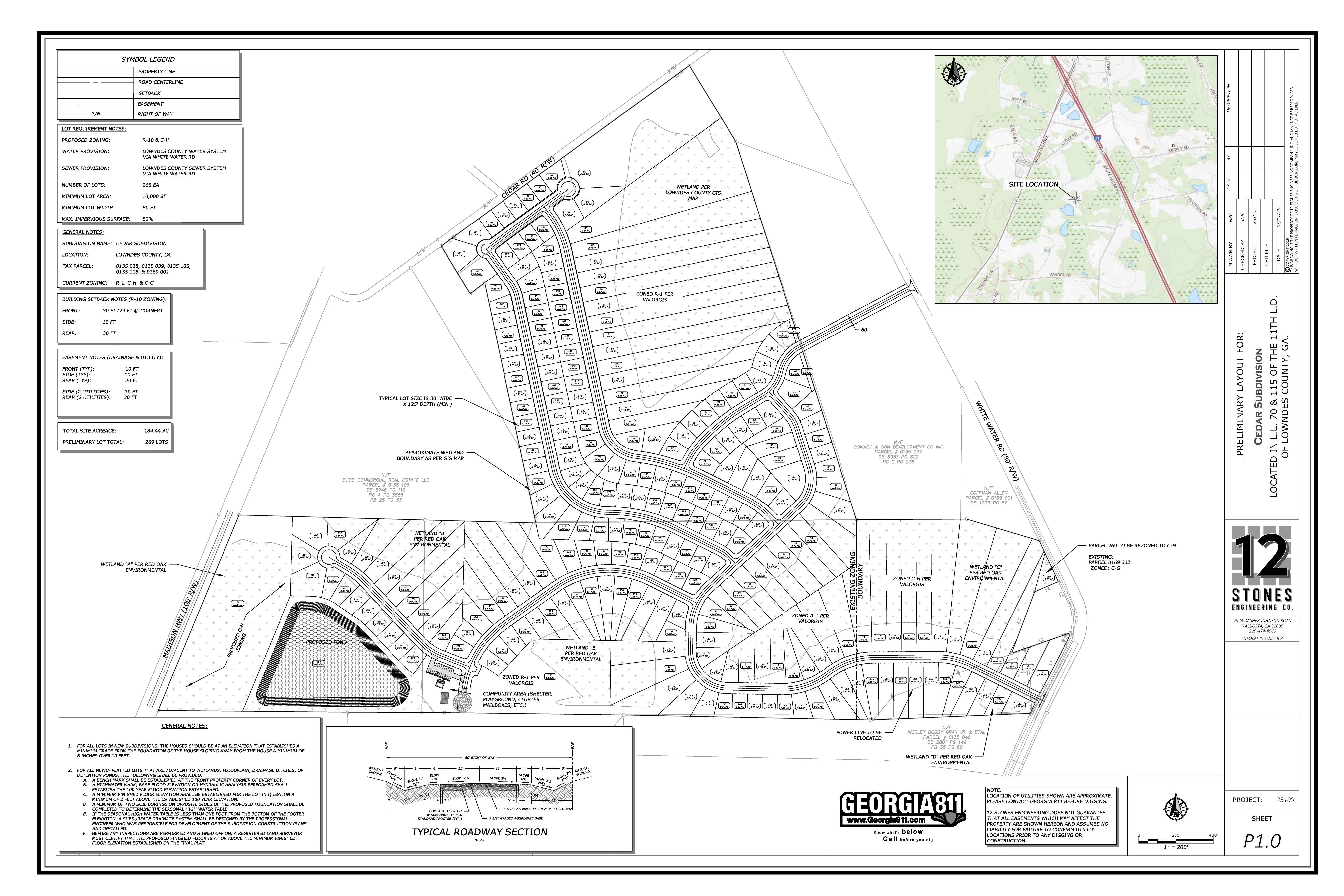
Map: Preliminary Layout for Cedar Subdivision

REZ-2026-08 Cedar Subdivision, White Water Rd, Cedar Rd, & Madison Hwy, ~184ac, R-1, C-G, & C-H to R-10 & C-H, County Utilities
Packet: one appointment, two subdivisions, huge and small @ LCC
13 April 2026

 
Map: Preliminary Layout for Cedar Subdivision
smaller PDF