Lowndes Area Knowledge Exchange (LAKE)

[prev][index][next] [index to photographs]

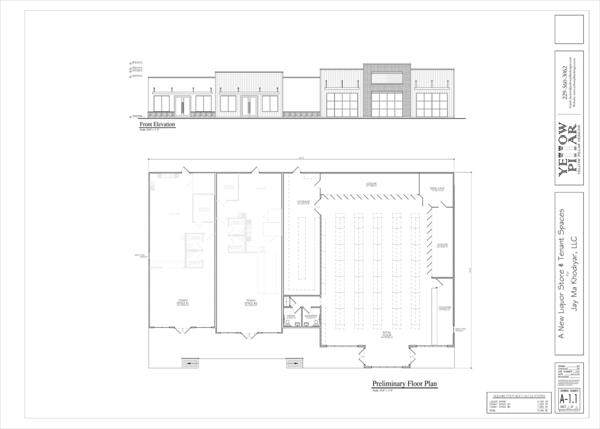
Front Elevation and Preliminary Floor Plan

REZ-2026-04 Jay Ma Khodiyar, ~1ac, 5507 Central St. (Clyattville), R-10 to C-G, County Water & Septic Work
Packet: One-Valdosta Lowndes Report, 3 Rezonings, 1 Subdivision, Paving, Alcohol, Housing Loan, LMIG @ LCC
9 March 2026

 
Front Elevation and Preliminary Floor Plan
bigger PDF