Lowndes Area Knowledge Exchange (LAKE)
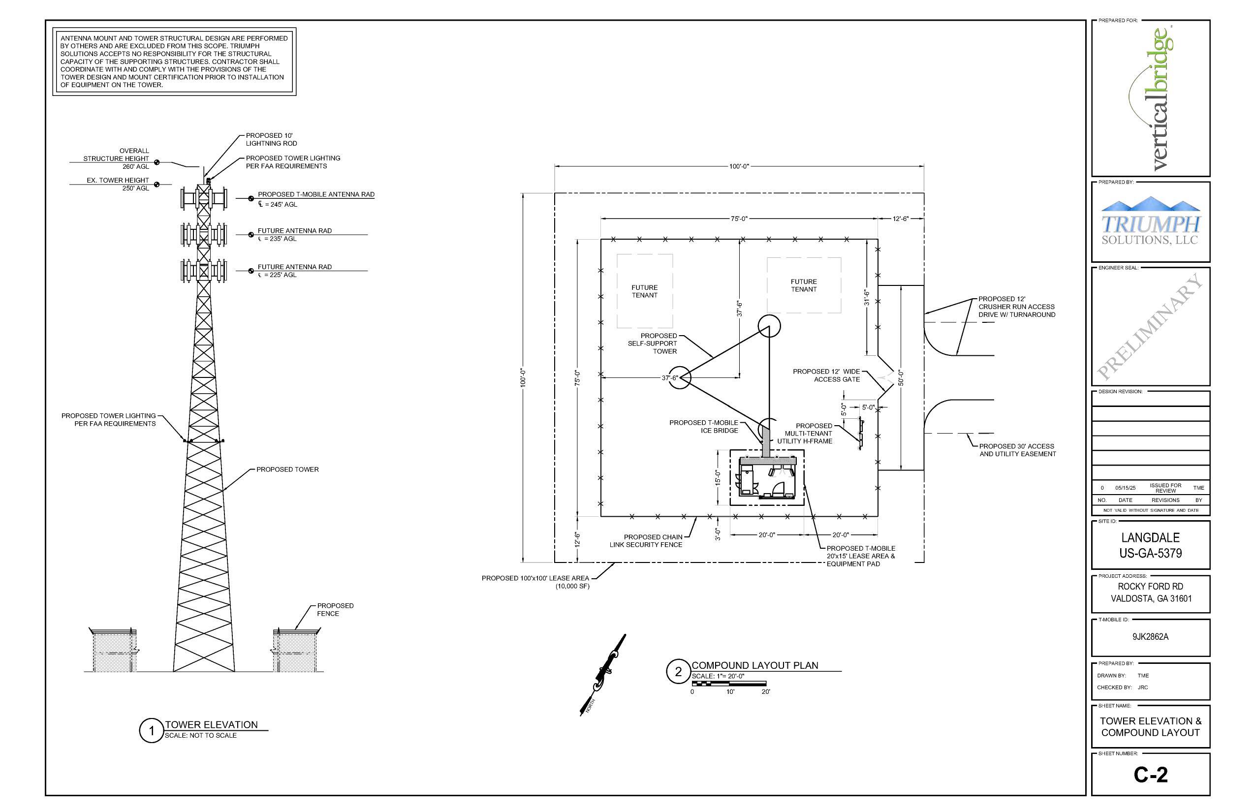
Tower Elevation & Compound Layout
TWR-2025-01 New 260' Telecommunications Tower
Packet: Rezonings, Dogs, Roads, and Subdivisions @ LCC
13 October 2025
smaller
PDF
Photographs
by
Lowndes Area Knowledge Exchange (LAKE)
,
licensed by a
Creative Commons Attribution-Share Alike 3.0 U.S. License
.
Lowndes Area Knowledge Exchange (LAKE)